Select from our Offices

Waterside House
72a High Street
Cowes
Isle of Wight
PO31 7RE

01983 200880
cowes@spencewillard.co.uk

Charles Spence
Charles Spence
Spence Willard team
Emma Bradley
Zadie Margham
Philip Weeks
Gaynor Owen
Bronte Ramsey

Sherbourne Street
Bembridge
Isle of Wight
PO35 5SB

01983 873000
bembridge@spencewillard.co.uk

Spence Willard team
Sam Branston
Hannah Cook
Hannah Cook
Charlotte Branston
Charlotte Branston
Tracy Brophy

The Square
Yarmouth
Isle of Wight
PO41 0NP

01983 761005
yarmouth@spencewillard.co.uk

Spence Willard team
Duncan Willard
Lesley Samson
Lesley Samson

The Old Bank
Tennyson Road
Freshwater
Isle of Wight
PO40 9AB

01983 756575
freshwater@spencewillard.co.uk

Jason Siviter
Jason Siviter
David Langford
David Langford
Cynthia Robertson
James Phillips

The Square
Yarmouth
Isle of Wight
PO41 0NP

01983 761005 opt 2
lettings@spencewillard.co.uk

Spence Willard office
Laura Homes
Alice MacNab
Alice MacNab
Henrietta MacLean
Henrietta MacLean
James Phillips

40 St James' Place
London
SW1A 1NS

020 7839 0888
london@spencewillard.co.uk

Spence Willard London office
Bob Bickersteth
Bob Bickersteth
Contact

1 Yvery Court

This modern duplex apartment provides spacious accommodation finished to an exacting standard. Completed in 2007 the property was finished to a high standard at the time and has subsequently been well-maintained and upgraded, benefitting from a new kitchen and utility room, as well as recently installed highly efficient boiler.The apartment has three good-sized double bedrooms, three shower/bathrooms, and a lovely sitting room with adjacent kitchen dining area opening to the large terrace, making for a great entertaining space. The property is comfortable and ideal for use as an easily maintained lock-up-and-leave or a main home for those valuing the easy access to Cowes High Street and The Parade. Cowes High Street with its array of amenities including a range of independent shops, restaurants, bars and the high speed Red Jet ferry service to Southampton are all within a two minute walk of the property, as are a number of the principal yacht clubs. There are walks along the seafront to Gurnard and Northwood Park for walking, tennis courts and bowls lawn, which can be accessed from the end of Castle Road.

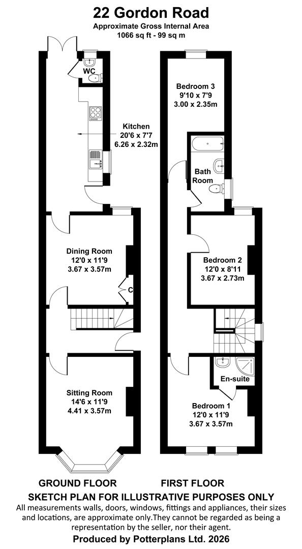
ACCOMMODATION
An attractive, arched opening leads to a covered entrance porch with oak front door to a staircase leading to the entrance.

GROUND FLOOR
ENTRANCE HALL A spacious entrance with staircase with low-level lighting and attractive, nautically inspired rope handrail down to the living areas.

BEDROOM 1 A good-sized double bedroom with fitted wardrobe cupboards. Window with plantation shutters.

SHOWER ROOM EN-SUITE Fitted with a quadrant shower cubicle, sink set on vanity unit with storage below, WC and heated towel rail. Window fitted with plantation shutters.

BEDROOM 2 A further double bedroom with plantation shutters and bi-fold door to:

STUDY Currently utilised as a study but could serve as a walk-in wardrobe.

FAMILY BATHROOM Tiled throughout and fitted with a bath with shower over with glazed screen, wash basin, WC and heated towel rail.

LOWER GROUND FLOOR

LANDING With deep storage cupboard, also housing the hot water cylinder.

BEDROOM 3 Double bedroom.

SHOWER ROOM Fully tiled walls and floor, with large shower enclosure, wash basin, WC and heated towel rail.

SITTING ROOM A beautiful, light room with panelling to the walls and French doors opening to the large terrace. Double doors open to the kitchen dining room, making for a wonderful entertaining space.

KITCHEN DINING ROOM Installed in 2024, the kitchen comprises ample fitted units with Corian worksurfaces and Neff appliances to include flexible induction hob with extractor above, wine fridge, oven & steam over, microwave oven & grill, and freestanding LG American fridge freezer. French doors open to the large terrace.

UTILITY ROOM Fitted with white gloss units and Corian worksurface to match the kitchen, worksurface with sink and boiling water tap, appliances to include washing machine, dishwasher and dryer. Wall-mounted Keston boiler.

OUTSIDE
There is a large terrace to the rear with power and lighting, ideal for outside seating and dining. Gated steps lead down to The Grove. There is also a shared, secure bin store. By the front door, there is lit and locked shelved storage unit (1.1m x 1.4m).

PARKING A residents parking permit can be purchased from the Isle of Wight Council for nearby on-street parking at a cost of £72 per annum.

TENURE Leasehold with a Share of Freehold. The property has a 999 year lease from 1st January 2007. The current service charge is £1,964.38 per annum, which includes building insurance, electricity and water to the common parts, fire protection, and contribution to a reserve fund. There are also security cameras to the building.

NOTE Holiday letting is not permitted, and animals require prior permission from the management company.

COUNCIL TAX Band E

EPC Rating B

SERVICES Mains water, electricity, drainage and gas. Gas fired under-floor heating zoned to each room with individual thermostats.

POSTCODE PO31 7QG

VIEWINGS All viewings will be strictly by prior arrangement with the sole selling agents, Spence Willard.

IMPORTANT NOTICE: 1. Particulars: These particulars are not an offer or contract, nor part of one. You should not rely on statements by Spence Willard in the particulars or by word of mouth or in writing (‘information’) as being factually accurate about the property, its condition or its value.
Neither Spence Willard nor any joint agent has any authority to make any representations about the property, and accordingly any information given is entirely without responsibility on the part of the agents, seller(s) or lessor(s). 2. Photos etc: The photographs show only certain parts of the
property as they appeared at the time they were taken. Areas, measurements and distances given are approximate only. 3. Regulations etc: Any reference to alterations to, or use of, any part of the property does not mean that any necessary planning, building regulations or other consent has
been obtained. A buyer or lessee must find out by inspection or in other ways that these matters have been properly dealt with and that all information is correct. 4. VAT: The VAT position relating to the property may change without notice